Мы используем куки-файлы. Соглашение об использовании

Продается 2-комн. квартира, 50 м²

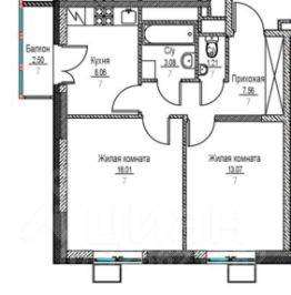
Общая площадь50 м²
Жилая площадь28 м²
Площадь кухни8 м²
Этаж9 из 17
Собственником продается 2-х комнатная квартира в новом монолитном многоквартирном доме. Комнаты все изолированные, санузел раздельный. Качественный евро ремонт от застройщика - можно меблировать и жить. Окна не выходят на проезжую часть. Выходят во двор и на внутри-квартальный проезд, т.е. на две стороны света - на юг и на запад. Очень светлая и теплая квартира. Свободная продажа. Один взрослый собственник. Быстрый выход на сделку. Ипотека приветствуется. Строго безналичный расчет и полная стоимость в договоре. Возможен обмен на квартиру в Москве, строго внутри МКАД, предпочтительно в САО, СЗАО, ЗАО, с нашей доплатой. Старый фонд не предлагать. Обмен возможен на 2-х комнатную квартиру площадью от 50 м2 в новом или нестаром доме (не старше 15 лет). Просьба 1,2 и последний этажи даже не предлагать к обмену - не рассматриваем. Только юридически чистые квартиры. Если обмен, то строго нотариальная сделка.
Позвоните автору
Вам ответят на все вопросы

О квартире

Тип жилья

Вторичка

Общая площадь

50 м²

Жилая площадь

28 м²

Площадь кухни

8 м²

Высота потолков

2,65 м

Санузел

1 раздельный

Балкон/лоджия

1 балкон

Ремонт

Евроремонт

Перепланировка

Не было

О доме

Количество лифтов

1 пассажирский, 1 грузовой

О подъезде

Есть мусоропровод, консьерж

Придомовая территория

Двор без машин

Парковка

Наземная

Юридические особенности

Несовершеннолетние собственники

Нет

Материнский капитал при покупке

Не использовался

Доступная среда

Вход в подъезд без порога
Вход в квартиру без порога
Есть пандус
Есть лифт от 90 см
Входная дверь от 80 см
Двери в ванной и санузле 65-70 см
Двери в кухне и комнатах 70-79 см
Спросите умного помощника
Получите экспертное мнение о жилье

Расположение

Ипотечный калькулятор
  • Базовая
  • Семейная
  • ИТ-ипотека
  • 20%
  • 30%
  • 40%
  • 50%
лет
  • 10 лет
  • 20 лет
  • 30 лет
Загружаем предложения от застройщика и банков
СобственникID 593387
  • Предоставил паспорт
10 300 000 ₽
Эксперт от ЦианаПомощь с поиском и гарантия безопасной сделки
Цена за метр
206 000 ₽/м²
Условия сделки
свободная продажа
Ипотека
возможна
СобственникID 593387
  • Предоставил паспорт